Monroe, NC 28112

Customer Support

Mon-Sat: 9AM - 5PM

Sundays: Closed

Alpha / Helix 16763N

Manufactured

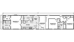
Floor Plan Details

The Alpha / Helix 16763N built by Cavco Rocky Mount offers a warm and inviting layout with 3 bedrooms, 2 bathrooms, and 1,178 square feet of thoughtfully arranged living space. From its cozy gathering areas to the peaceful private bedrooms, this home strikes a lovely balance between comfort and function. The Helix 16763N is a welcoming haven where your days begin with purpose and end with peace.

Share This Home

Beds: 3
Baths: 2.00
Sq. Ft.: 1178
WxL: 16′ 0″ x 76′ 0″

 

Built by: Cavco Rocky Mount

3D Tour

Floor Plan

Gallery

Tours & Videos

Specifications

No specification data available

Please Note:

All sizes and dimensions are nominal or based on approximate builder measurements. 3D Tours and photos may include dealer and/or factory installed options. Acme Homes of Monroe reserves the right to make changes due to any change in material, color, specifications, or features at any time without notice or obligation.