Monroe, NC 28112

Customer Support

Mon-Sat: 9AM - 5PM

Sundays: Closed

Berkshire / 16603C

Manufactured

Floor Plan Details

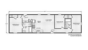
The Berkshire / 16603C built by Cavco Rocky Mount is a smart and inviting home designed to make the most of 930 square feet. This 3 bedroom, 2 bathroom layout offers a cozy living room that flows into the dining area and kitchen, creating an easy space for daily life. The primary bedroom sits on one end with a nearby full bath, while two additional bedrooms and a second bath are on the opposite side for added privacy. A handy utility area adds extra function. The 16603C is a bright, efficient home that fits your lifestyle with comfort and ease.

Share This Home

Beds: 3
Baths: 2.00
Sq. Ft.: 930
WxL: 16′ 0″ x 60′ 0″

 

Built by: Cavco Rocky Mount

3D Tour

No 3d Tour Available

Floor Plan

Gallery

Tours & Videos

Specifications

Exterior Wall On Center: 16 inches on Center
Exterior Wall Studs: 2x4 Exterior Wall Studs
Floor Decking: OSB Tongue and groove
Floor Joists: 2x6 Floor Joists
Interior Wall On Center: 16 inches on Center
Interior Wall Studs: 2x4
Roof Load: #20
Side Wall Height: 7' Sidewall Height
Insulation (Floors): R-11
Insulation (Walls): R-11
Insulation (Ceiling): R-21
Dormer: Dormer Std.
Front Door: Residential Front Door
Roof Pitch: 3/12
Shingles: Composition
Siding: Vinyl Siding with OSB Backing
Window Type: Storm WIndows
Ceiling Texture: Seaspray Paneled Ceiling
Window Treatment: Wood Cornice Window Accents
Electrical Service: 200 Amp
Shut Off Valves Throughout: Yes
Water Heater: 30 Gallon
Bathroom Flooring: Linloeum
Bathroom Countertops: Formica
Bathroom Custom Options: Glamor Bath
Kitchen Refrigerator: 16 Cubic Frost Free
Kitchen Range Type: Deluxe Range
Kitchen Range Hood: Standard
Kitchen Flooring: Vinyl
Kitchen Dishwasher: Standard
Kitchen Custom Options: Crown Molding on Top of Cabinets
Kitchen Countertops: Formica
Kitchen Cabinetry: Raised Panel Cabinet Doors with Base Center Shelves
Kitchen Backsplash: Ceramic Tile Backsplash

Please Note:

All sizes and dimensions are nominal or based on approximate builder measurements. 3D Tours and photos may include dealer and/or factory installed options. Acme Homes of Monroe reserves the right to make changes due to any change in material, color, specifications, or features at any time without notice or obligation.