Monroe, NC 28112

Customer Support

Mon-Sat: 9AM - 5PM

Sundays: Closed

Berkshire / 16663C

Manufactured

Floor Plan Details

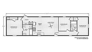
The Berkshire / 16663C built by Cavco Rocky Mount is a smart and inviting home made for simple living. With 1,023 square feet, this 3 bedroom, 2 bathroom layout gives you just the right amount of space. The living room sits at the center and flows into the dining area and kitchen, making it easy to gather and relax. The primary bedroom features a private bath, while two additional bedrooms share a full second bath. A handy utility area adds extra function. The 16663C is a bright, comfortable home that makes everyday life feel easy and enjoyable.

Share This Home

Beds: 3
Baths: 2.00
Sq. Ft.: 1023
WxL: 16′ 0″ x 66′ 0″

 

Built by: Cavco Rocky Mount

3D Tour

No 3d Tour Available

Floor Plan

Gallery

Tours & Videos

Specifications

Exterior Wall On Center: 16 inches on Center
Exterior Wall Studs: 2x4 Exterior Wall Studs
Floor Decking: OSB Tongue and groove
Floor Joists: 2x6 Floor Joists
Interior Wall On Center: 16 inches on Center
Interior Wall Studs: 2x4
Roof Load: #20
Side Wall Height: 7' Sidewall Height
Insulation (Floors): R-11
Insulation (Walls): R-11
Insulation (Ceiling): R-21
Dormer: Dormer Std.
Front Door: Residential Front Door
Roof Pitch: 3/12
Shingles: Composition
Siding: Vinyl Siding with OSB Backing
Window Type: Storm WIndows
Ceiling Texture: Seaspray Paneled Ceiling
Window Treatment: Wood Cornice Window Accents
Electrical Service: 200 Amp
Shut Off Valves Throughout: Yes
Water Heater: 30 Gallon
Bathroom Flooring: Linloeum
Bathroom Countertops: Formica
Bathroom Custom Options: Glamor Bath
Kitchen Refrigerator: 16 Cubic Frost Free
Kitchen Range Type: Deluxe Range
Kitchen Range Hood: Standard
Kitchen Flooring: Vinyl
Kitchen Dishwasher: Standard
Kitchen Custom Options: Crown Molding on Top of Cabinets
Kitchen Countertops: Formica
Kitchen Cabinetry: Raised Panel Cabinet Doors with Base Center Shelves
Kitchen Backsplash: Ceramic Tile Backsplash

Please Note:

All sizes and dimensions are nominal or based on approximate builder measurements. 3D Tours and photos may include dealer and/or factory installed options. Acme Homes of Monroe reserves the right to make changes due to any change in material, color, specifications, or features at any time without notice or obligation.